Бизнес-план стоматологии. Готовый бизнес-план стоматологического кабинета: необходимое оборудование и требования СЭС. Бизнес-план стоматологии Проект стоматологической клиники на 3 кресла
Услуги стоматолога востребованы всеми людьми, независимо от гендерной принадлежности, возраста и социального статуса. Распишем подробно готовый бизнес план стоматологического кабинета клиники.
По предварительным подсчетам, для необходимо иметь чуть больше 2 миллионов рублей.
Что будет входить в эту сумму:
- Ремонт арендуемого помещения обойдется в 150 тысяч рублей.
- Покупка оборудования, которое необходимо для оказания стоматологических услуг – 900 тысяч рублей.
- Принадлежности для дезинфекции рабочих инструментов – 300 тысяч рублей.
- Приобретение мебели для кабинета на 250 тысяч рублей.
- Лекарственные средства по стоимости на 50 тысяч рублей.
- Размещение наружной рекламы потребует вложений на 50 тысяч рублей.
- Сумма для непредвиденных расходов – 200 тысяч рублей.
Открывающиеся перспективы
Актуальность услуг стоматологов никогда не перестанет быть популярной. В связи с этим, и разработан образец бизнес плана стоматологического кабинета для клиники. Почти каждый встречается с проблемой кариеса. Это самый распространенный вид заболевания зубов. Потребность в данном виде услуг очень высокая.
Прежде всего это . И привлекательным его делает высокая цена. Даже несмотря на высокую конкуренцию и наличия бесплатных государственных учреждений, каждый в состояние найти свою лояльную аудиторию
В нашем стоматологическом кабинете клиентам будут предоставлять следующие виды услуг:
- Поверхностный кариес. Его лечение стоит 1 тысячу 300 рублей.
- Средний кариес. Стоимость – 1 тысяча 500 рублей.
- Глубокий кариес. Стоимость 1 тысяча 700 рублей.
- Пульпит. Стоимость лечения 4 тысячи 200 рублей.
- Цена на установку коронки будет варьироваться от 1,5 тысячи рублей до 4 тысяч рублей.
- Протез будет стоить от 10 тысяч рублей и выше.
- Слепок зубов – 600 рублей.
- Ремонт протеза – 800 рублей.
Стоматологический кабинет будет работать с понедельника по субботу. С 9-00 утра до 18-00 вечера.
По предварительным расчетам, за день будет осуществляться прием от 8 человек. В среднем, каждый клиент будет оставлять по чеку сумму в 2 тысячи 500 рублей. Таким образом, если придерживаться данных из примера стоматологического кабинета, то в месяц выручка составит 500 тысяч рублей, а в год – около 6 миллионов 100 тысяч рублей.

Производственный план
Под размещение своего бизнеса, мы планируем взять в аренду помещение, площадь которого составит 35 квадратных метров. Располагаться оно будет в спальном районе. Ежемесячная оплата составит порядка 30 тысяч рублей. Договор будет заключен на год с дальнейшей пролонгацией.
- Помещение не нужно перепланировывать, и оно соответствует всем санитарным нормам.
- Для одного стоматологического кресла по нормам положено 15 квадратных метров.
- Освещение не меньше 5 тысяч люкс.
- Помещение покрашено в нейтральные цвета.
- В кабинете имеется – канализация, водопровод, отопление, вентиляция, электричество.
Данное помещение планируется разделить на несколько зон:
- Санузел.
- Гардероб
- Подсобка.
- Зона для приема пациентов.
- Комната для ожидания.
Самое необходимое оборудование для стоматологического кабинета:
- стоматологические анестетики;
- лампа кварцевая и УФ;
- лампа полимеризационная;
- ультразвуковая мойка;
- пескоструйный наконечник;
- электронное запечатывающее устройство;
- дистиллятор;
- кресла;
- расходные материалы.
Так же потребуется приобрести шкаф и стол для хранения инструментов и самое главное – сейф для сильнодействующих веществ.
В общей сложности для придется потратить 1 миллион 600 тысяч рублей.

Персонал
Для полноценной работы потребуется:
- Два стоматолога.
- Один стоматолог ортопед.
- Два ассистента.
График сменный – два дня через два.
Для ассистентов зарплата будет состоять только из фиксированного оклада – 15 тысяч рублей. У стоматологов она будет состоять только от процента выручки. Услуги бухгалтерии будут отданы на аутсорсинг.
Внимание! Бесплатный бизнес-план, предлагаемый для скачивания ниже, является примерным. Бизнес-план, наилучшим образом соответствующий условиям вашего бизнеса, необходимо создавать с помощью специалистов.
Стоматологические услуги всегда пользуются большим спросом, именно поэтому стоматологический бизнес является очень прибыльным.
Открытие данного рода бизнеса, как и любого другого начинается с составления бизнес – плана. Грамотно составленный проект является залогом успешного бизнеса.
На нашем сайте вы можете скачать примерный бизнес – план стоматологического кабинета, что позволит вам существенно сэкономить время и деньги.
Для начала вашей деятельности, первым делом необходимо зарегистрировать предприятие и получить лицензию. Следующим шагом будет поиск подходящего месторасположения и помещения.
Для открытия стоматологического кабинета, предполагающего одно рабочее место, необходимо выбрать помещение с общей площадью не менее сорока квадратных метров.
Согласно действующему законодательству выделяемая площадь, для одной стоматологической установки должна составить четырнадцать квадратных метров. Общая площадь помещения предполагает наличие холла, санузла и подсобного помещения.
Оборудование
Самой дорогой статьей затрат в данном бизнес – плане является закупка стоматологического оборудования. Закупаемое оборудование должно быть высокого качества и соответствовать необходимым требованиям.
Ниже приведен список необходимого для работы оборудования:
- Стоматологическое кресло;
- Автоклав;
- Стерилизатор;
- Физиограф;
- Гелиоотверждающие лампы;
- Рентген;
- Расходные материалы;
- Комплект инструментов.
Рабочий персонал
Набирать на работу нужно исключительно квалифицированных специалистов с большой практикой, ведь именно от профессионализма работающих у вас стоматологов зависит количество постоянных клиентов.
Учитывая, что наш примерный бизнес – план стоматологического кабинета рассчитан на одно рабочее место, то и врач должен быть один. Ассистентом стоматолога является медсестра.
Образование медсестры должно быть не ниже средне специального и стаж работы должен составить минимум 2 года.
По закону рабочие часы врача – стоматолога не должны превышать шести часов, поэтому работа в вашей стоматологии будет проходить в две смены, а значит, штат автоматически увеличится еще на два человека.
Помимо медперсонала необходимо нанять администратора, главного бухгалтера и уборщицу.
Предоставляемые услуги
Данный проект предполагает предоставление следующих услуг:
- Лечение кариеса;
- Отбеливание;
- Протезирование;
- Рентгенография;
- Терапия;
- Имплантация;
- Хирургия;
- Детская стоматология;
- Компьютерная физиография;
- Эстетическая стоматология.
Финансовый расчет
Работа стоматологического кабинета предполагает следующие расходы:
- Аренда помещения, которая будет оплачиваться ежемесячно;
- Расходы на ремонт, причем ремонт можно так же назвать существенной затратой. Тут экономить не стоит, так как внешний вид кабинета – это лицо стоматологии;
- Расходы, связанные с регистрацией и лицензированием;
- Зарплата сотрудников, так же относится к ежемесячным затратам. Начисление заработной платы будет происходить в результате суммы установленного оклада и процентов от реализации предоставляемых услуг;
- Ежемесячные расходы на рекламу и коммунальные платежи;
- Покупка расходных материалов;
- прочие расходы.
Полезно знать!
Мы уважаем ваш выбор, но хотим напомнить, что наименее рискованный, относительно легкий и комфортный старт бизнеса можно организовать под крылом успешной компании на условиях франчайзинга. Предлагаем познакомиться с .
Почему начинать бизнес с франшизой, проще и удобнее можно узнать из подборки статей опубликованных в разделе:
Итоговая сумма ежемесячных расходов составит приблизительно 7500 евро.
Что касается первоначальных вложений, а именно:
- Ремонт помещения, составил – 5000 евро;
- Закупка оборудования – 42500 евро;
- Покупка оргтехники – 1500 евро.
Итого округленно – 50 000 евро.
Учитывая, что ежемесячная выручка от предоставленных услуг составит 12 000 евро, налогооблагаемая прибыль будет 4500 евро.
Зная месячный доход легко можно подсчитать годовой 4500х12 = 54000
Затраты на первоначальные вложения составили пятьдесят тысяч евро, а годовой доход – пятьдесят четыре тысячи, отсюда следует что стоматологический бизнес очень быстро окупается, всего лишь за один год.
Смотреть видео: “Оснащение стоматологического кабинет”
Платная медицина на сегодняшний день является одной из самых прибыльных и рентабельных отраслей бизнеса.

Все потому, что в частных клиниках работают самые лучшие врачи, стоит самое дорогое оборудование и всегда есть индивидуальный подход к клиенту. Нельзя также не учитывать тот факт, что с тем, как растет уровень жизни, увеличивается и количество людей, которые готовы тратить все больше и больше денег на заботу о собственном здоровье. Сегодня стоматологический бизнес является одной из самых удачных возможных инвестиций. Следовательно, активным предпринимателям есть повод задуматься о том, чтобы составить бизнес план стоматологической клиники.
Однако некоторые бизнесмены волнуются по поводу того, что у них вовсе нет никаких знаний и опыта в медицине, в связи с чем может не получиться. Стоит знать, что знание медицины для открытия подобного бизнеса является необязательным. Связано это с тем, что из выпускников медицинских высших учебных заведений достаточно редко получаются хорошие предприниматели, экономисты, менеджеры и так далее.
Стоит заметить, что государство скоро полностью признает, что содержать бесплатные медицинские учреждения бессмысленно. Достаточно часто муниципальные клиники выживают только потому, что врачи неофициально подрабатывают на своих местах. Однако в связи с тем, что денег на государственные медицинские клиники выделяется немного, многие пациенты сталкиваются с более низким уровнем обслуживания, чем в приватных медицинских учреждениях.
Вернуться к оглавлению
Что нужно для того, чтобы создать собственную стоматологическую клинику
Вернуться к оглавлению
Выбор помещения, которое понадобится для открытия клиники
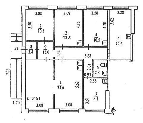
В данном бизнес-плане будет рассмотрен пример создания стоматологической клиники на 5 кресел. Для этого потребуется помещение, общая площадь которого - 180-200 кв. м.. Важно заметить, что выбранное помещение должно соответствовать всем требованиям СЭС, в нем должно быть как минимум 5 окон (по одному окну на каждое стоматологическое кресло).
В случае, если имеется достаточно большой стартовый капитал, помещение лучше будет приобрести. Это позволит не зависеть от арендодателя. Бывают случаи, когда владельцы помещений просят людей, которые снимают у них помещение, покинуть его. Следовательно, предпринимателю понадобится искать и переезжать в другое место. Это может потребовать дополнительных денежных и временных затрат. Помимо того, понадобится получать лицензию заново. Это все может привести к потере постоянных клиентов, что является недопустимым для стоматологических кабинетов.
В случае, если вначале имеется немного денежных средств, есть смысл подумать для начала об аренде помещения. Важно помнить о том, что необходимо особое внимание уделить составлению договора с арендодателем. Рекомендуется не пожалеть денег на то, чтобы воспользоваться услугами качественного и опытного юриста. Это позволит минимизировать возможные риски.
Один из способов в максимально короткие сроки - приобрести готовый бизнес. Однако здесь есть достаточно большое количество нюансов, большая часть из которых не самые приятные. Следовательно, если выбор пал на данный вариант, обязательно понадобится обратиться к квалифицированному специалисту.
Следует знать, что вовсе не обязательным условием является размещение здания в центральных районах города. Самым главным в подобном бизнесе является забота о качестве предоставляемых услуг. Если данный пункт будет на высоте, заинтересованные клиенты найдут стоматологический кабинет даже на окраине города.
Вернуться к оглавлению
Возможные затраты на проведение ремонтных работ
Важно заметить, что начинающие предприниматели допускают две самых распространенных ошибки.

- Слишком большие вклады в дизайн выбранного помещения, в связи с чем может не хватить денежных средств на приобретение качественного оборудования, которое является более важным для стоматологического кабинета, чем его общий вид. Высококвалифицированных врачей также не получится привлечь в кабинеты, в которых стоит дешевое оборудование. Следовательно, пострадает качество предоставляемых услуг, что негативно скажется на отношении постоянных клиентов.
- Поручение проектирования самой крупной фирме, которая профессионально занимается проектированием различных дворцов. Подобные предприятия имеют достаточно большой опыт в создании проектов красивых зданий, однако вовсе не имеют никакого опыта в медицинских помещениях. Следовательно, подобные компании не знают специфики технологической цепочки и всех необходимых требований СЭС. В итоге помещение может получиться достаточно красивым, но не эффективным. Именно поэтому чаще всего приходится переделывать подобные проекты.
Можно сделать вывод о том, что вкладывать в ремонт более 700 евро в один кв. м не имеет никакого смысла. Все дело в том, что в стоматологию люди приходят лечить зубы, а не глазеть на морской аквариум либо какие-нибудь произведения искусства. Стоит учитывать, что достаточно большое количество денежных средств придется потратить на коммуникации. В каждом кабинете должна быть канализация, вода, вентиляция, электричество. После того как проект будет согласован, можно приступить к выполнению ремонтных работ. Не нужно забывать о том, что для ремонта в помещении клиники должны быть использованы исключительно сертификационные материалы. Экономить на этом не стоит, поскольку это приведет лишь к тому, что придется переделывать все заново. Искать обходные пути нет смысла, так как в любом случае в органы надзора будет необходимо предоставить копии лицензий проектной и строительной организации.
Вернуться к оглавлению
Оформление всех документов, которые понадобятся для открытия бизнеса
Стоит заметить, что сбор всего необходимого пакета документов для открытия собственной стоматологическое поликлиники является самым хлопотным делом. Связано это с тем, что любая перепланировка требует множества разрешений от таких инстанций, как отдел архитектуры, СЭС, пожарных, районной администрации и так далее. Практически за все справки-разрешения нужно платить, однако дело даже не в деньгах, а в количестве временных затрат. В случае, если планируется установка рентгеновской техники, понадобятся другие дополнительные разрешения, которые могут отнять достаточно большое количество собственных сил.
Помимо того, необходимо будет получить медицинскую лицензию (в случае, если планируется открывать детскую стоматологию либо хирургию, лицензий понадобится несколько). Здесь есть выбор: заняться сбором всех документов самостоятельно либо заплатить человеку, который сделает все самостоятельно. Таким человеком может быть кто угодно: сам врач, студент, пенсионер, юридическая фирма. Стоит знать, что студенты - наиболее дешевый вариант, а юридические фирмы - наиболее дорогой, зато эффективный.
Вернуться к оглавлению
Приобретение подходящего оборудования для стоматологического кабинета
Достаточно сложно разобраться в стоматологическом оборудовании самостоятельно. Как вариант, можно посетить соответствующую выставку, однако это не особо облегчит задачу. Каждый стенд будет расхваливать своего производителя техники для стоматологии, при этом ни один из них скажет то, что его техника ненадежна, стоит больших денег либо вовсе неэффективна. Поэтому мало кто умеет выбирать правильное оборудование.
Каждый стоматолог за всю свою жизнь, как правило, работает с 1-2 производителями оборудования. Следовательно, это больше дело привычки. Хотя для большинства предпринимателей стоматологическое оборудование - это что-то совсем непонятное, выход из данной ситуации есть. Есть специалисты, которые хорошо разбираются в профессиональной технике и могут помочь сделать правильный выбор для будущего стоматологического кабинета. Следовательно, необходимо будет в бизнес-план включить пункт затрат на услуги подобного специалиста.
Вернуться к оглавлению
Расходы, которые будут при открытии стоматологической клиники
Чаще всего для того, чтобы создать стоматологический кабинет среднего класса, потребуется:
- 5 кресел по 15000-20000 долларов за каждое из них (итого суммарные затраты приблизительно 75000-100000 долларов).
- Оснащение каждого кресла - по 5000 долларов за каждое (итого суммарные расходы будут как минимум 25000 долларов).
- Приобретение панорамного рентгена - 16500 долларов, прицельного рентгена - приблизительно 3500 долларов (суммарные расходы будут составлять 20000 долларов).
- Покупка необходимой мебели и всего вспомогательного оборудования - приблизительно 15000 долларов.
Итого суммарные расходы могут составить порядка 135000-160000 долларов.
Суммарные затраты клиники включают и следующие пункты:
- Выполнение ремонтных работ - ориентировочно 140000-190000 долларов.
- Приобретение всего необходимого оборудования - ориентировочно 135000-160000 долларов.
- Затраты на проектирование, сбор и получение документации, раскрутку, проведение рекламных кампаний и другие расходы - приблизительно 20000-50000 долларов.
В итоге конечная сумма расходов будет составлять ориентировочно 300000-400000 долларов.
Вернуться к оглавлению
Ежемесячные расходы и возможная рентабельность подобного дела
- Оплата выполняемого стоматологами труда (25% от общего оборота) - ориентировочно 25000 долларов.
- Оплата выполняемого труда вспомогательным персоналом - приблизительно 10000 долларов.
- Закупка расходных материалов (порядка 6-8% от всего оборота) - как минимум 8000 долларов.
- Расходы на хозяйство, рекламу, продвижение и прочее - порядка 10000 долларов.
Итого суммарные ежемесячные расходы будут составлять приблизительно 53000 долларов.

Следовательно, прибыль стоматологического кабинета (без учета арендной платы, поскольку она будет у каждого своя) будет составлять приблизительно 47000 долларов в месяц. Тогда годовая прибыль будет около 560000 долларов в случае, если недвижимость в собственности. Если же придется брать помещение в аренду, необходимо будет вычесть стоимость арендной платы умноженной на 12 месяцев из общей прибыли. После того как у клиники будет достаточное количество постоянных клиентов, рентабельность подобного бизнеса будет составлять приблизительно 30%. Стоит заметить, что существует достаточно немного отраслей, которые смогут предложить подобный уровень доходности.
Вернуться к оглавлению
Подбор необходимых сотрудников для выполнения работы
Для того чтобы открыть кабинет на 5 кресел, понадобится приблизительно 10 врачей и 10 медсестер, 2 администратора, 2 санитарки и директор. Бухгалтера можно найти приходящего, который будет выполнять работу только тогда, когда она будет. При этом он будет работать всего на полставки. Стоматологи могут получать приблизительно 25% от всей выручки. Медсестрам целесообразнее платить ставку в 300-400 долларов, санитаркам будет достаточно и 200-250 долларов. Стоит учитывать тот факт, что расчеты были произведены для города Москвы.
Подобрать высококвалифицированных сотрудников достаточно сложно, в связи с этим можно начинать поиски еще с момента проведения ремонтных работ в выбранном помещении для стоматологической клиники. Это позволит полностью собрать коллектив к тому дню, когда кабинет будет готов.
Стоит запомнить раз и навсегда, что работники всегда будут пытаться забрать как можно большее количество денег себе в карман, при этом их вовсе не интересует то, сколько денег останется хозяину. Следовательно, понадобится с самого начала производить четкий контроль материалов, трудового вклада каждого из сотрудников, наладить учет всех приходящих пациентов и так далее. Наиболее простым и правильным решением будет использование специального программного обеспечения, которое разрабатывалось именно для таких целей. На рынке сейчас имеется достаточно большое количество программ, некоторые из которых похуже, а некоторые получше. Следовательно, и здесь не получится обойтись без высококвалифицированных специалистов, которые имеют достаточный опыт работы с подобными программами. Необходимо выбрать тот вариант, который способен снять с предпринимателя возможную головную боль, связанную с уводом постоянных клиентов, воровством, отлыниванием от клиентской записи и от хорошего учета, что является достаточно важным для того, чтобы никакая часть доходов не утекала в песок.
Александр Капцов
Время на чтение: 15 минут
А А
Стоматологию относят к высокорентабельному бизнесу. Подобное положение сложилось не вчера, это характерно для любого времени. Выводы многих аналитиков однозначны: приличный доход получает сам владелец бизнеса и его наемный персонал. Что же нужно для открытия и функционирования стоматологического кабинета? Сколько стоит открытие стоматологии с нуля? Как составить план бизнес с расчетами затрат?
Стоматологические услуги: изучаем спрос и предложение
Востребованность услуг стоматологов в России достаточно высокая. На этом фоне отмечается неуклонный рост спроса. Сей факт, неудивителен. Безупречность зубов всегда считалась показателем красоты и отменного здоровья. Конечно, непомерное увеличение количества частных клиник, зафиксированное в последнее десятилетие прошлого века, несколько поутихло. Все же частный сектор рассматриваемой сферы активно развивается, расширяя перечень предоставляемых услуг. Например, в Москве на долю частной стоматологической практики приходится почти 50% от общего количества оказываемых стоматологических услуг, в Самаре – до 60%, в Калининградской области до 80% и так далее.
По данным статистики:
- Для города с количеством жителей, превышающим 50 000 человек, характерно наличие одной частной клиники или нескольких зубоврачебных кабинетов.
- В более крупных населенных пунктах (до 1 500 000 человек) в среднем насчитывается 100 подобных медицинских учреждений.
- В столице и Северной Пальмире их не менее 500.
Если обратиться к анализу специалистов относительно нуждающихся в стоматологическом лечении, то 50% пациентов и более готовы лечиться платно.
Какие виды организаций имеются на рынке стоматологии, где россияне лечат зубы:
- В государственных и ведомственных клиниках
Их основное предназначение – обслуживание малоимущих граждан. Отличаются устаревшим оборудованием и некачественными расходными материалами. Дополнительные услуги оказываются на платной основе. В профессиональном плане данный сектор называют своеобразной кузницей кадров, пополняющей частные кабинеты.
- В частных клиниках различной категории (высшей, средней, эконом)
Класс стоматологии определяется уровнем оснащенности, дизайном, квалификацией многочисленного персонала. Данный сегмент предоставляет весь спектр стоматологического сервиса – диагностику, терапию, хирургию и так далее.
- В частных стоматологических кабинетах
Как правило, они располагаются в небольших помещениях до 30-80 «квадратов», имеют не более двух стоматологических установок. Диапазон оказываемых услуг меньше, нежели в клиниках. Однако без обращения к специалисту трудно обойтись в тех случаях, когда необходим профилактический осмотр, отбеливание зубов, лечение десен или пульпита и прочее. Это и есть фронт деятельности для хорошего частного стоматолога. Вот почему настоящий профи обеспечен работой всегда.
С точки зрения владельцев бизнеса:
- Частным клиникам присущи: высокая посещаемость и, соответственно, высокая доходность. Например, средний размер чистой прибыли за месяц от 15 кабинетов, размещенных в помещении на площади 200 м², составляет 1 150 000 рублей. Открытие многопрофильного медицинского учреждения сопряжено с немалыми финансовыми тратами (несколько десятков миллионов рублей), получением самостоятельных лицензий (для каждого вида деятельности отдельное лицензирование), набором многочисленного штата специалистов, организацией структурных подразделений и прочими вопросами.
- Открытие стоматологического кабинета проще во всех отношениях и первоначальные затраты намного меньше. Несложно организовать работу двух врачей, занимающихся лечением зубов (иногда удалением зубов) и гигиеническими процедурами. Даже необязательна покупка рентген аппарата. Клиенты могут направляться на снимок в ближайшую поликлинику. Безусловно, наличие услуг по протезированию, имплантации и ортопедии значительно увеличивает посещаемость кабинета.
Какие документы необходимы для регистрации и функционирования стоматологии с нуля?
Предпринимателю, набирающему штат специалистов, удобней всего зарегистрировать ООО. Если владелец бизнеса сам является врачом-стоматологом и предполагает вести прием пациентов лично, то лучший вариант – индивидуальное предпринимательство (ИП).
Следующий шаг – получение лицензии:
- При оформлении ИП лицензию получает конкретное физлицо – индивидуальный предприниматель.
- При наличии статуса ООО лицензируются сотрудники, имеющие необходимый стаж и образование.
Внимание . В лицензии на медицинскую практику указывается конкретное помещение. Соответственно, оформление бизнеса предполагает наличие уже подготовленных к работе площадей, то есть покупку или аренду недвижимости, выполнение ремонта и так далее.
Факт регистрации бизнеса подтверждается соответствующей документаций, полученной в налоговых органах, пенсионной службе, фонде обязательного медстрахования (ФОМС), фонде соцстрахования (ФСС).
Ведение бизнеса также невозможно без банковского счета, печати, книги для учета доходно-расходных операций и зарегистрированного в службе по налогам кассового аппарата.
Перечень услуг стоматологических кабинетов и примерный прайс-лист: какие услуги может оказывать стоматология?
Примерный прайс-лист стоматологического кабинета может выглядеть следующим образом (указаны основные позиции):
| Вид услуги | Стоимость,
в рублях |
| Консультация врача с целью определения плана лечебных мероприятий | 300-500 |
| Гигиенические мероприятия (удаление налета, зубного камня) | 2 000- 3 500 |
| Отбеливание | 9 100/19 100 |
| Удаление зуба | 1 900- 7 900 |
| Протезирование за единицу | |
| Металлокерамика (стоимость штифта не учтена) | от 13 000 |
| Коронка из диоксида циркония | от 18 400 |
| Съемный протез | от 14 900 |
| Имплантация | |
| Имплантат с установкой | 19 100- 41 000 |
| Цена коронки из металлокерамики/диоксида циркония к имплантату | 26 100/30 000 |
| Лечение | |
| Среднего/глубокого кариеса + пломбировка фотополимерном | от 2 900/3 400 |
| Пульпита + восстановление зуба | от 7 900 |
| Периодонтита | от 8 400 |
| Корневого канала | от 3 900 |
| Услуги детского стоматолога | |
| Терапевтическое сотрудничество | от 550 |
| Цена лечения кариеса/пульпита за один молочный зуб | от 1 900/2 400 |
| Цена удаления/ серебрения за один молочный зуб | от 750/180 |
| Гигиенические мероприятия | от 1 500 |
| Осмотр + справка о санации | от 450 |
Перечень указанных выше услуг можно сокращать или расширять. Однако при формировании цены важно понимать, что на стоимость стоматологических услуг влияют следующие параметры: цена расходников и оборудования, а также затраты на высокоуровневый сервис. В любом случае расценки не могут быть низкими. Кроме того, учитывая многие факторы, не стоит упускать из виду качество оказываемых услуг, включая профессионализм врачей, что в полной мере оправдывает немалую стоимость лечения.
Выбор помещения для стоматологического кабинета. Требования и разрешения
Самым подходящим местом для расположения зубоврачебного кабинета являются помещения в деловых либо спальных районах.
Дополнительные критерии выбора:
- Близость остановок общественного транспорта либо метро.
- Наличие бесплатных парковочных мест.
- Расположение на первом этаже. Каким будет здание (жилым или административным) в принципе неважно.
- Обязательно соответствие выбранных площадей требованиям служб, отвечающих за санитарную и пожарную безопасность.
Иногда подыскать соответствующий объект довольно трудно. Поэтому к оптимальному варианту относится выполнение перепланировки. Правда, затраты увеличиваются и появляется иной риск – отказ арендодателя в продлении договора. Из чего закономерно вытекает оформление новой лицензии уже применительно к другому помещению и новый виток бумажной рутины и расходов.
Безопасными представляются два способа:
- Долгосрочный тип аренды с правом выкупить арендуемую площадь.
- Приобретение помещения. Здесь минус лишь в больших затратах на старте.
Для справки . Объект жилого фонда подлежит переводу в категорию нежилых помещений. Помимо прочего перепланировке сопутствует составление технологических и архитектурных проектов с последующим согласованием в городских службах (пожарной, архитектурной, потребительском надзоре). Лучше доверить эту часть профессионалам сферы согласований.
К выбору помещения приступают при наличии четкого плана бизнесе, где указана планировка будущего кабинета (сколько рабочих мест, какое оборудование и где будет стоять) с учетом будущего расширения деятельности.
Список основных требований потребнадзора к стоматологическим кабинетам:
- Одна стоматологическая установка размещается на площади размером 14 «квадратов».
- Каждая последующая установка предполагает увеличение метража на 7 м².
- Трехметровые потолкли.
- Максимум для глубины комнаты 6 метров.
- Односторонний вариант дневного освещения.
Таким образом, одно рабочее место требует площади до 30 м²:
- Кабинет стоматолога (14 м²).
- Холл (10 м²).
- Санузел (5 м²).
При планах на расширение деятельности применяются следующие критерии:
- Шесть «квадратов» для стерилизационного кабинета, если количество зубоврачебных установок превышает две единицы.
- Для рентген кабинета 11 м², для проявочной комнаты еще 6 «квадратов».
- Для других кабинетов (детского, ортопедического и прочих) по 15 м².
- Для склада, туалета, администрации – 30 «квадратов».
После завершения перепланировки помещения, введения его в эксплуатацию и набора персонала следует получить разрешения на осуществление деятельности в следующих инстанциях:
- В потребительском надзоре.
- Пожарной инспекции.
Не стоит также упускать из вида оформление лицензии на ведение медицинской деятельности в выбранном помещении.
Оборудование, необходимое для работы стоматологического кабинета
Без чего немыслима работа стоматолога, или каким оборудованием комплектуется зубоврачебный кабинет:
- Стоматологическим креслом в четырех рукавном исполнении (это минимум). Рукава используются для подключения водно-воздушного пистолета, микромотора с разнообразными наконечниками, турбины, ультразвукового сканера, удаляющего зубной камень и налет. Средняя стоимость от 350 000 рублей. Цена ежемесячного обслуживания от 3 500 рублей.
- Гелиоотверждающими лампами. Их цена начинается от 11 000 рублей.
- Апекслокаторами – электронными приборами, определяющими длину канала в корне зуба. Эта техника стоит 32 000 рублей.
- Автоклавом для обработки инструментов – 61 000 рублей.
- Стерилизатором – 33 000 рублей.
- Радиовизографом – аналогом рентген аппарата. Его стоимость сопоставима со стоматологическим креслом – около 260 000 рублей.
Приблизительные затраты на оборудование в пределах 500 000-600 000 рублей, если покупку визографа отложить на будущее.
Материалы и инвентарь для работ в стоматологии
Техническая база дополняется инвентарем и расходными материалами:
- Сменными и дополнительными наконечниками. Это своеобразная страховка от неисправностей. Цена от 4 600 рублей.
- Пломбировочными составами, гигиеническими и химическими средствами. Затраты от 5 000 рублей.
- Стоматологическими инструментами по цене 35 000 рублей.
- Шкафчиками, в которых будут храниться инструменты и препараты, – 75 000 рублей.
- Другой мебелью (столом, стульями, шкафом для одежды, диваном, креслами для посетителей) – 56 000 рублей.
Итого выходит до 180 000 рублей. Безусловно, на офисной мебели допустима экономия.
Персонал для функционирования стоматологического кабинета
Нелишним будет напоминание об отдельной лицензии для каждого направления деятельности, о высокой квалификации врачей и соответствии персонала необходимым критериям:
- Наличие специальных сертификатов (терапевтического, хирургического и так далее) в зависимости от специальности врача.
- Предоставление диплома интерна и ординатора.
- Обязателен подтвержденный пятилетний стаж (это минимум).
Сотрудники среднего звена, имеющие соответствующее медобразование, также могут быть зачислены в штат. Они, как правило, ассистируют врачам, выполняют гигиенические процедуры.
Внимание . Исходя из норм, максимальная длительность рабочего дня врача-стоматолога шесть часов и не более.

Таким образом, полноценна деятельность стоматологии с одним стоматологическим креслом, обеспечивается персоналом в составе: двух врачей, двух медсестер, санитарки и администратора.
Как рекламировать новую стоматологию: реклама и маркетинг бизнеса
Запуск информации об открытии нового стоматологического кабинета выполняется обычными проверенными способами.
Они подразумевают:
- Рекламу в СМИ (в разделе бесплатных объявлений).
- Всевозможную внешнюю рекламу – запоминающуюся вывеску, билборд, размещенный недалеко от кабинета, раздачу флаеров в местных торгово-развлекательных центрах, рекламу на остановках, в транспорте и так далее.
- Создание сайта с описанием услуг, прайс-листом, отзывами пациентов и прочей информацией. Раскрутке способствует интернет-запись на прием и онлайн-консультации специалистов.
- Создание страницы или группы в соцсетях. К друзьям часто обращаются в связи с поиском хорошего стоматолога. Конечно, у многих есть свой специалист, но случаются переезды, увольнение зубного врача или возникают иные причины для похода в новую стоматологию. Вот и пригодится совет интернет-друга.
Несколько слов о e-mail маркетинге, он хорош при работе с клиенткой базой и посетителями сайта:
- Для оповещения о специальных предложениях и проведении акций.
- Для информирования имеющихся клиентов о потребности пройти плановый осмотр. Это повышает «повторные продажи».
- Для рассылки новостей. Например, куплен новый «супер» прибор или в штате появился новый врач «экстра класса».
